

When you’re thinking about building a home, you want something affordable, durable, and designed for your lifestyle. That’s exactly what a manufactured home offers.

Manufactured homes give you more home for your money. Because they’re built in a factory setting, costs are lower, and those savings are passed on to you. Unlike traditional homes that take months to build, manufactured homes are built in weeks and delivered almost ready to livein. That means you can move into your dream home sooner.
Lower Labor Costs:
Centralized production reduces labor waste and minimizes expensive delays caused by weather or subcontractor issues.
Predictable Pricing:
Bulk purchasing and optimized construction techniques reduce material costs and significantly cut waste.
Homes can be built in weeks, not months, meaning less interest
expense and quicker occupancy. Most homes arrive 80-90% complete, and are quickly installed
on site.

Every manufactured home is built indoors under is strict quality controls and federal building standards. Rain, snow, or wind never delays construction, so you get consistent, top-notch craftsmanship.
Precision Engineering:
Homes are designed using advanced manufacturing methods that ensure structural integrity and consistency across every unit.
Code Compliance:
Manufactured homes are built to the HUD Code or state modular codes, which include rigorous structural, fire safety, and energy standards.
Quality Control:
Daily inspections in a controlled environment mean fewer defects and
higher craftsmanship than many site-built homes.

Every manufactured home is built indoors under is strict quality controls and federal building standards. Rain, snow, or wind never delays construction, so you get consistent, top-notch craftsmanship.
Tight Construction & Better Insulation:
Factory building allows homes to be assembled in a controlled environment, reducing air leakage and enabling insulation to be installed with precision.
High-Performance Systems:
Many manufactured homes include energy-efficient HVAC, windows, and appliances that meet or exceed ENERGY STAR standards.
Lower Utility Bills:
Because systems are optimized and tested before leaving the factory, homeowners often benefit from significantly reduced heating and cooling costs.
Green Materials:
Factories can more easily integrate sustainable materials, reduce
waste, and recycle leftover building components.

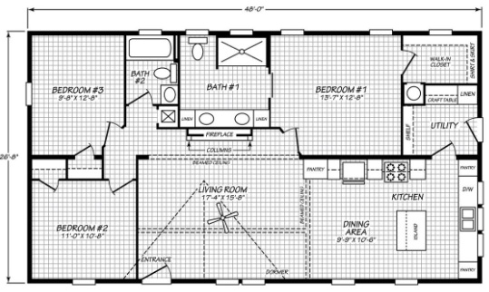
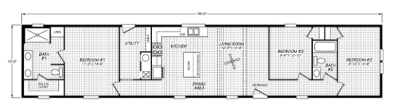
From cozy single-section homes to spacious multi-section layouts, you can choose the size, style, and finishes that fit your family.
Modern Aesthetics:
Today’s manufactured homes offer open-concept layouts, upgraded kitchens, and high-end finishes.
Floor Plan Flexibility:
Buyers can select layouts, materials, colors, and features that suit their lifestyle and budget.


With today’s financing options and the ability to place your home on a permanent foundation, a manufactured home is not just affordable, it’s a solid long-term investment. With proper installation and land ownership, manufactured homes can appreciate similarly to site-built homes. Energy savings, reduced maintenance requirements, and high-quality systems provide long-term financial advantages.
Copyright © 2026 Lynn Modular Homes
Phone: (804) 514-9990
Email: [email protected]

Lynn Modular homes is a full-service custom home builder. We have been developing and building custom
homes throughout Virginia, and Florida for 29 years.