
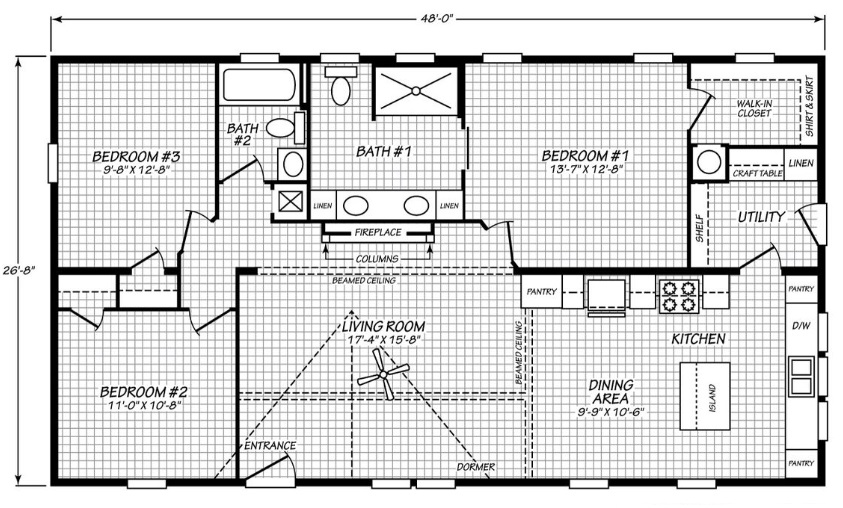
Explore our collection of spacious Double Wide Floor Plans, thoughtfully designed for comfort, functionality, and modern living. Each layout—like the one shown above—features open-concept living areas, multiple bedrooms, and well-appointed kitchens that blend style with convenience. With smart architectural flow and flexible space options, these homes offer the perfect balance of privacy and togetherness, making them ideal for families of all sizes.
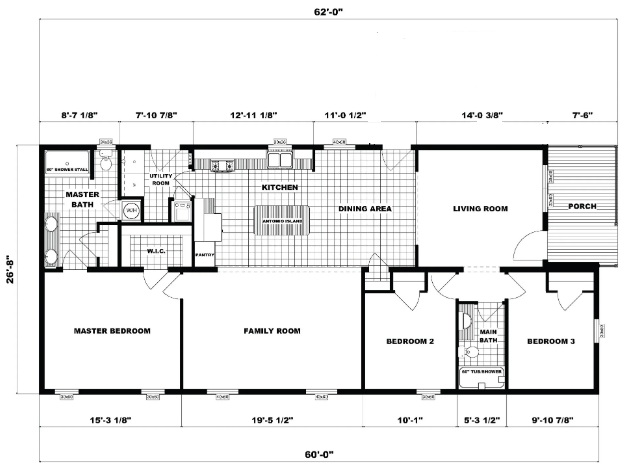
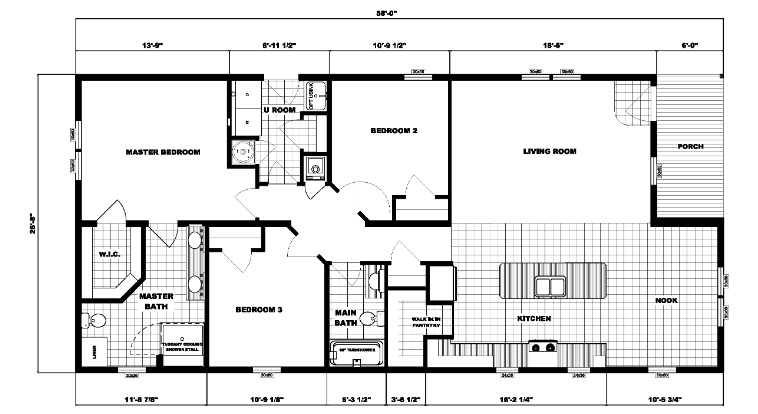
These floor plans below are our best selling plans we currently have. We offer several additional options that we can certainly show you based on what you are looking for.








Copyright © 2026 Lynn Modular Homes
Phone: (804) 514-9990
Email: [email protected]

Lynn Modular homes is a full-service custom home builder. We have been developing and building custom
homes throughout Virginia, and Florida for 29 years.